Repara y dale más vida a tu electrodoméstico… y al planeta
Inicio>Lavavajillas Samsung>DW60M6050FW

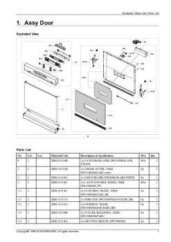
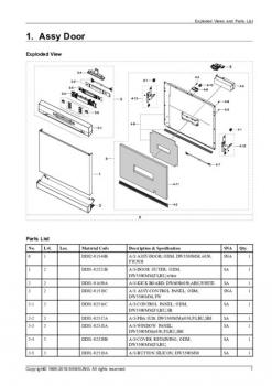
Despiecesv^

Los despieces son esquemas o ilustraciones de electrodomésticos en los que se pueden identificar y ubicar todas las piezas y componentes de forma sencilla.
¿Desea recibir el despiece?

Filtrosv^

Localizar componentes para este electrodoméstico:
Número de posición del despiece
1-14 1-7 4-13 4-7 4-8 5 6 7 18

Lavavajillas SAMSUNG DW60M6050FW

Variantes del lavavajillas: DW60M6050FW/EU, DW60M6050FW/EC

Para encontrar la pieza que buscas de manera precisa y evitar errores, simplemente abre el despiece, encuentra la parte que necesitas y haz clic en el número correspondiente en la sección de Filtros.

Si no encuentras la pieza que buscas, háznos una consulta clicando aquí.

Listado de repuestos

1 a 25 (de 44 resultados en total)

Si no encuentra la pieza que necesita, por favor, háganos una consulta haciendo clic aquí.

Variantes del lavavajillas: DW60M6050FWEU, DW60M6050FWEC